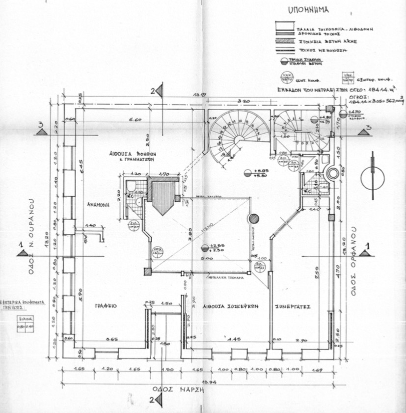
This listed building of 210m2 is located in a quiet mainly residential location on the western slopes of Lycavettus hill. It is looking on three (3) streets, one of which is pedestrian.

Though the present facades must be maintained further building is allowed vertically. Given the 3,0 Building Coefficient it can build up to 550m2 on 2 main floors (each around 160 and 180 m2) plus a mezzanine (around 60 m2). Two basement levels may also be conceived for storage and parking. 

Noteworthy that the A' Basement is at groundfloor level on the lower street thanks to the sloping ground.

Τιμή: 
350.000€
Τύπος Ακινήτου: 
Μονοκατοικία
Προσανατολισμός: 
Νοτιοδυτικός
Εμβαδό (τ.μ): 
210
Επίπεδα: 
2
Σαλόνια: 
2
Υ/δ: 
3
Κουζίνες: 
1
Μπάνια: 
2
WC: 
1
Θέρμανση: 
Αυτόνομη
Μέσο θέρμανσης: 
Φυσικό Αέριο
Θέσεις στάθμευσης: 
1
Έτος κατασκευής: 
1910
Ενεργειακή κλάση: 
Ζ
Κήπος
Ιδιόκτητη ταράτσα
Χρήζει ανακαίνισης
Εσωτερική σκάλα
Ρετιρέ
Γωνιακό
Προσόψεως
Διαμπερές
Επενδυτικό
Ημιτελές
Επαγγελματική χρήση
Στείλτε μας το μήνυμα σας
Κλείστε ένα ραντεβού
i
Όνομα *(*)
Παρακαλώ συμπληρώστε το όνομα σας
Επώνυμο *(*)
Παρακαλώ συμπληρώστε το επώνυμο σας
Email *(*)
Παρακαλώ συμπληρώστε το email σας
Τηλ. επικοινωνίας *(*)
Παρακαλώ συμπληρώστε το τηλέφωνο σας
Μήνυμα *(*)
Παρακαλώ συμπληρώστε το μήνυμα σας
Υποχρεωτικό πεδίο
ΚΛΕΙΣΤΕ ΕΝΑ ΡΑΝΤΕΒΟΥ

Φωτογραφίες

18 Φωτογραφίες
Επικοινωνήστε μαζί μας για να λύσουμε όποια απορία ή να κανονίσουμε συνάντηση.
Copyright © 2026 Kroikos. All rights reserved